-------- -------- --------
Profile zatrudnienia
Zrealizowane projekty
O mnie
-------- -------- --------
Pasek

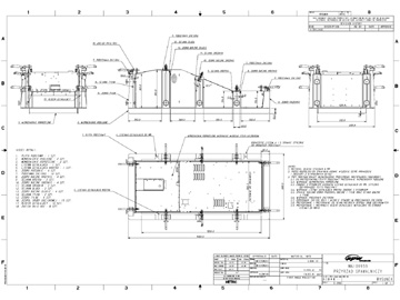
Obrotowe stanowisko spawalnicze

Stanowisko to, wykonane w firmie APW Poland, umożliwiło znaczne zwiekszenie wydajności produkcji detali dla projekty RES. Technologia początkowa przewidywała montaż 8 szt. korpusów przez 2 pracowników w czasie 1 zmiany. Stanowisko to składa się z odpowiednio przygotowanego szkieletu z uchwytami zaciskowymi, który odwzorowuje kształt montowanego korpusu oraz z obrotowo zawieszonej podstawy umożliwiającej manipulowanie detalem wokół osi podłużnej.

Stanowisko w znaczny sposób ułatwiło pracę. Dowodem tego jest dokonana wkrótce zmiana w technologii produkcji, przewidująca użycie opisywanego stanowiska obsługiwanego przez jednego tylko pracownika z wydajnością 15 korpusów szaf na zmianę.

W projektowaniu zastosowano:
  • oprogramowanie Pro/Engineer umożliwiło dokonanie symulacji pracy stanowiska
  • konsultacje z pracownikami spawalni ułatwiły wdrożenie stanowiska do produkcji
Obrotowe stanowisko spawalnicze - projekt Obrotowe stanowisko spawalnicze
Pasek
Marek Sawistowski © 2010
Projekt:
Specjalne stanowisko spawalnicze, zwiększenie wydajności produkcji, zmniejszenie pracochłonności.